Objektart
Adresse
Objektdaten
Informationen
Ausstattung
Details
2-geschossige Doppelhaushälfte, Südterrasse, Nordbalkon, voll unterkellert (auch unter der Terrasse), doppelverglaste Holzfenster, eingewachsener Garten, Garage.
Wesentlicher Energieträger für die Heizung des Gebäudes: Gas-Zentralheizung mit Warmwasser-Bereitung (Baujahr 2003), Verbrauchsausweis vom 16.09.2025, Endenergieverbrauch 118,78 kWh/(m²a), Energieeffizienzklasse D.
Schauen Sie sich doch unseren 360° Rundgang und Film an:
www.sutter-immobilien-team.de/MS20251828
Teppich- und Fliesenböden. Schönheitsreparaturen sind bei Einzug notwendig.
Bezug kurzfristig möglich.
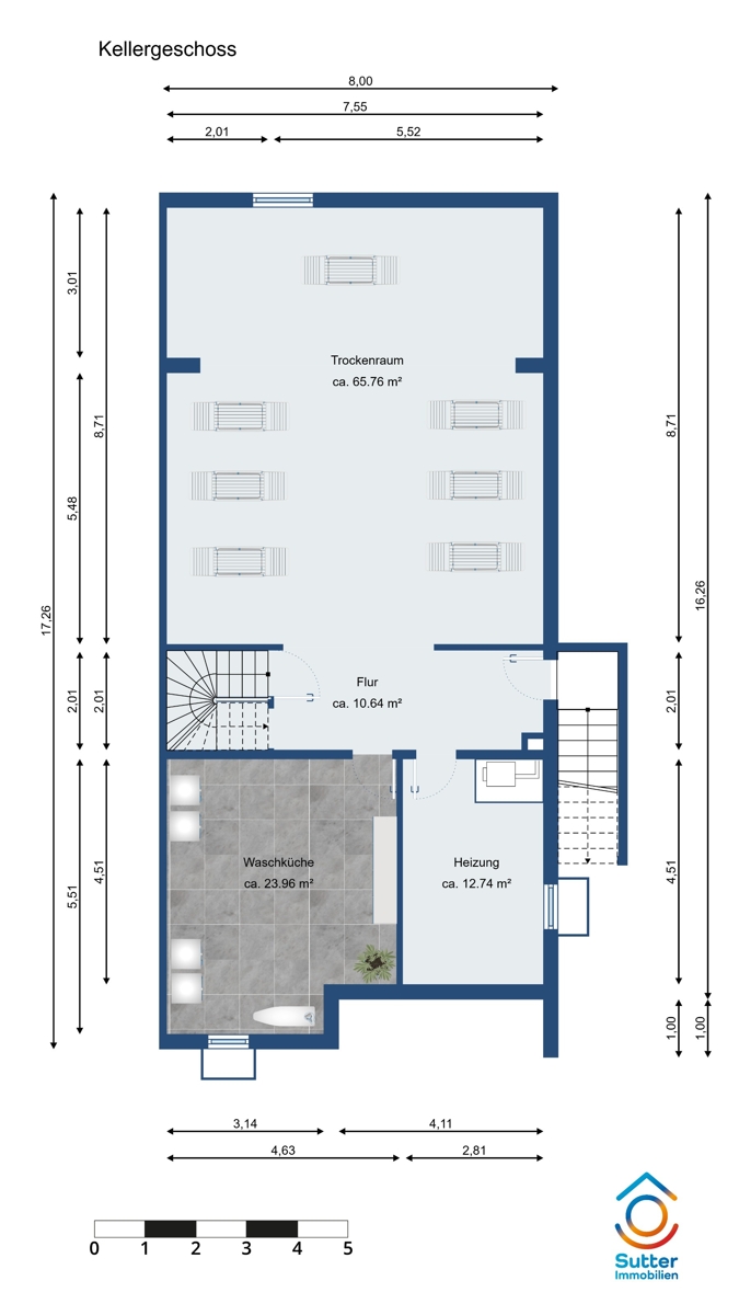
Kellergeschoss: Grosser Trockenraum/Hobbyraum, Heizungsraum, Waschküche, Flur.
Erdgeschoss: Windfang, Arbeitszimmer/Kinderzimmer, Wohn-Esszimmer mit Galeriebereich, Küche, Abstellraum, Gäste-WC.
1. Obergeschoss: Schlafzimmer, Kinderzimmer, Bad/WC, Diele mit Galerie.
Dachgeschoss: momentan Dachboden - bedingt ausbaubar.
Die Doppelhaushälfte befindet sich in Kaufbeuren-Ost, ca. 15 Gehminuten vom Zentrum und Bahnhof entfernt. Bushaltestelle, Einkaufsmöglichkeiten usw. sind in der Nähe.
Ansprechpartner
Telefax: 004983419081880
martin@sutter-immobilien-team.de
Energieausweis (Verbrauchsausweis)
118,78 kWh / (m²*a) Energieverbrauchskennwert
118,78 kWh / (m²*a) Energieverbrauchskennwert
118,78 kWh / (m²*a) Energieverbrauchskennwert
Weitere Informationen
| Wesentlicher Energieträger | GAS |
| Energieausweis gültig bis | 2035-09-15 |
| Energieausweis Jahrgang | ab dem 1.5.2014 |
| Energieausweis Werteklasse | D |
| Energieausweis Baujahr | 1978 |
| Energieausweis Gebäudeart | Wohngebäude |
| Heizung | Zentralheizung |
| Befeuerung | Gas |
Ich bin damit einverstanden, dass mir Karten von Google angezeigt werden. Es gelten die Datenschutzbedingungen von Google (https://policies.google.com/privacy).
Ich bin einverstanden